Enter your details below to get alerted by e-mail when new property becomes available for rent.
[contact-form-7 404 "Not Found"]4 Seascape Lane Coopers Beach Northland 0420
For Sale
Asking Price $599,000


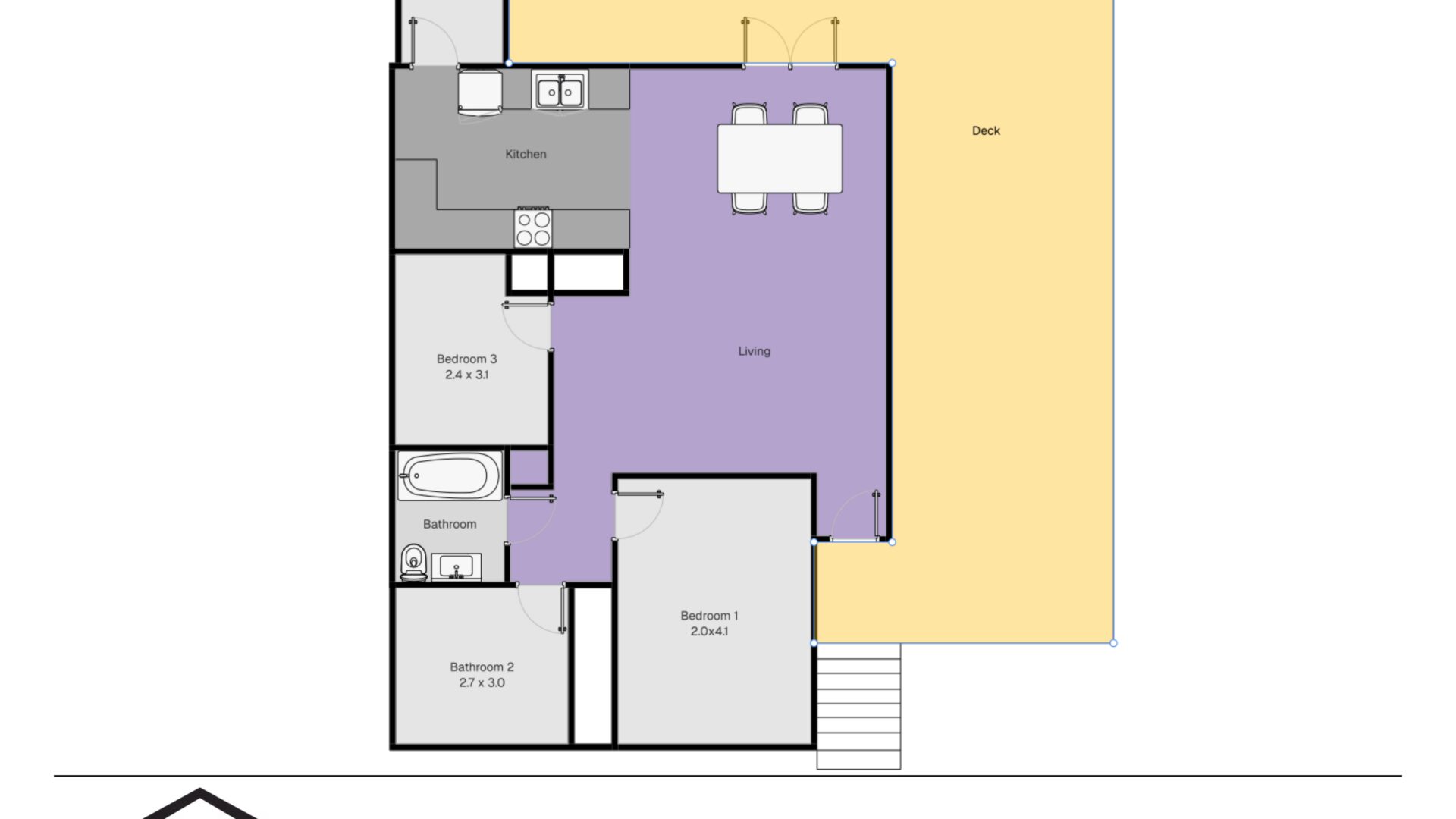
Step into easy coastal living with this newly renovated three-bedroom, two-bathroom home in the heart of Doubtless Bay. Fresh, modern, and move-in ready, it’s the perfect place to unwind and enjoy the laid-back lifestyle.
Step inside and discover a beautifully transformed home, where light-filled spaces, stunning hardwood floors, and a seamless open-plan layout come together for effortless living and entertaining. Fully renovated throughout, it features a sleek new kitchen with stone benchtops, complemented by beautifully finished new bathrooms. The living areas flow seamlessly out to a brand-new wrap-around deck-perfect for entertaining, relaxing, or soaking up the coastal atmosphere.
Three well appointed bedrooms deliver comfortable family living, with a location that truly enhances everyday life. From here, you can leave the car at home and enjoy an easy stroll to Coopers Beach, the supermarket, cafés, the local GP clinic, and the wider shopping precinct. Everything you need for day-to-day living is within walking distance, offering a relaxed, low-stress coastal lifestyle. The property is designed for low-maintenance living, with easy-care grounds and established fruit trees that add character without the upkeep-ideal for those seeking simplicity, lock-and-leave ease, or more time to enjoy the surroundings.
Freshly renovated, full of coastal charm, and ready to enjoy – this one won’t stay on the market for long!
Property Highlights
• 3 Bedrooms, 2 Bathrooms
• Freshly renovated and move-in ready
• Brand-new wrap-around deck for indoor-outdoor living
• Beautiful hardwood floors throughout
• Minutes from Coopers Beach and local amenities
Move in, relax, and start enjoying the Doubtless Bay lifestyle!
If this property sounds like the perfect fit for you, get in touch today!
4 Seascape Lane Coopers Beach Northland 0420 Far North