Enter your details below to get alerted by e-mail when new property becomes available for rent.
5 Doubtless Bay Drive Karikari Northland 0483
For Sale
Price By Negotiation


Discover the ultimate beachside lifestyle at this beautifully presented property in the heart of the Karikari Peninsula. Perfectly positioned close to all the stunning beaches the area is famous for-and just moments from local amenities-this home offers incredible versatility, comfort, and income potential.
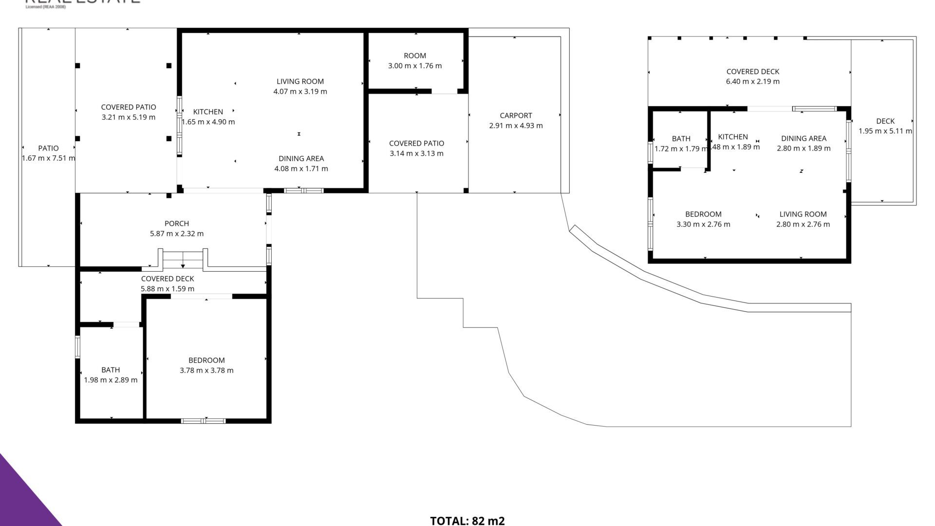
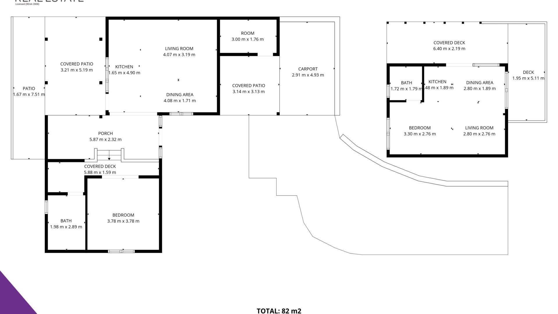
The property features two self-contained units:
Front Owner’s Unit: A light, tidy space that captures lovely views over Doubtless Bay, giving you that relaxed coastal outlook every day.
Rear Airbnb Setup: Featuring 1 bedroom and 1 bathroom, this established guest area offers an ideal opportunity for passive income, extended family living, or visiting friends.
With its beachy bachy inspired feel, this home embraces laid-back coastal living. Enjoy the addition of a private spa, perfect for unwinding after a day exploring the peninsula’s pristine bays and beach’s.
Whether you’re looking for a holiday home, a permanent residence with income, or a beach-lover’s retreat, 5 Doubtless Bay Drive delivers the best of Karikari living.
Beachy charm. Income potential. Relaxed coastal lifestyle.
Don’t miss this rare opportunity, give me a call today!!
5 Doubtless Bay Drive Karikari Northland 0483 Far North